Modern two bedroom apartment in Dasoupoli near Aretaeio Hospital
Sold / EUR 208.000 (VAT not included)
77775070
or +357 95598488
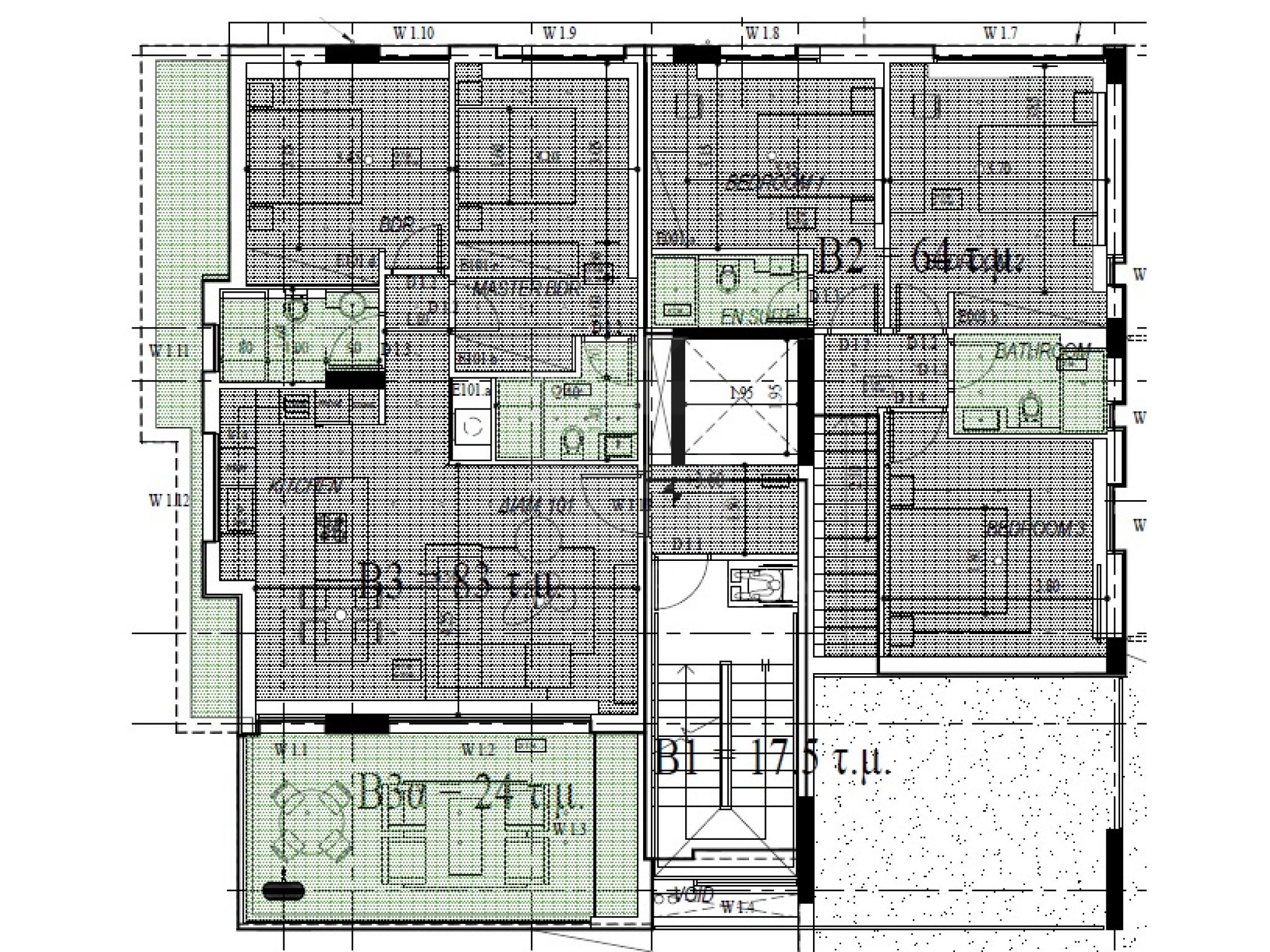
Apartment building under construction in the area of Dasoupoli near Aretaeio Hospital. The apartment building is adjacent to a green area on the west side. Access to the building is through automatic gates.
The apartment building is only 5 apartments in total. This apartment is build on the 1st floor and consists of a living room with a dining area, a kitchen, 2 bedrooms and 2 bathrooms. One of the bathrooms is en-suite in the master bedroom.
FEATURES:
- 24 sqm covered veranda
- storage
- covered parking
- video intercom
- ceramics / parquet worth 30 sq.m
- sanitary ware 3,000.00
- provision for air conditioning
- provision for underfloor heating
Υπό ανέγερση πολυκατοικία στην περιοχή Δασούπολη κοντά στο Αρεταίειο. Η πολυκατοικία εφάπτεται με χώρο πρασίνου στην δυτική πλευρά. Η πρόσβαση στο κτήριο είναι με αυτόματες καγκελόπορτες.
Η πολυκατοικία είναι στο σύνολο μόνο 5 διαμερίσματα. Αυτό το διαμέρισμα βρίσκεται στον 1ο όροφο και αποτελείται από σαλόνι με τραπεζαρία, κουζίνα, 2 υπνοδωμάτια και 2 μπάνια. Ένα από τα μπάνια βρίσκεται στο κυρίως υπνοδωμάτιο.
ΧΑΡΑΚΤΗΡΙΣΤΙΚΑ:
- 24 τ.μ βεράντα καλυμμένη
- αποθήκη
- καλυμμένο χώρο στάθμευσης
- θυροτηλεόραση
- κεραμικά/παρκέ αξίας 30τ.μ
- είδη υγιεινής 3.000,00
-προνοια για κλιματισμο
- προνοια για υποδαπέδια θέρμανση
To arrange an appointment to view this and any other property from our website, please call or email us directly.








