Modern two bedroom apartment for sale is Engomi
Sold / EUR 225.000 (VAT not included)
77775070
or +357 95598488
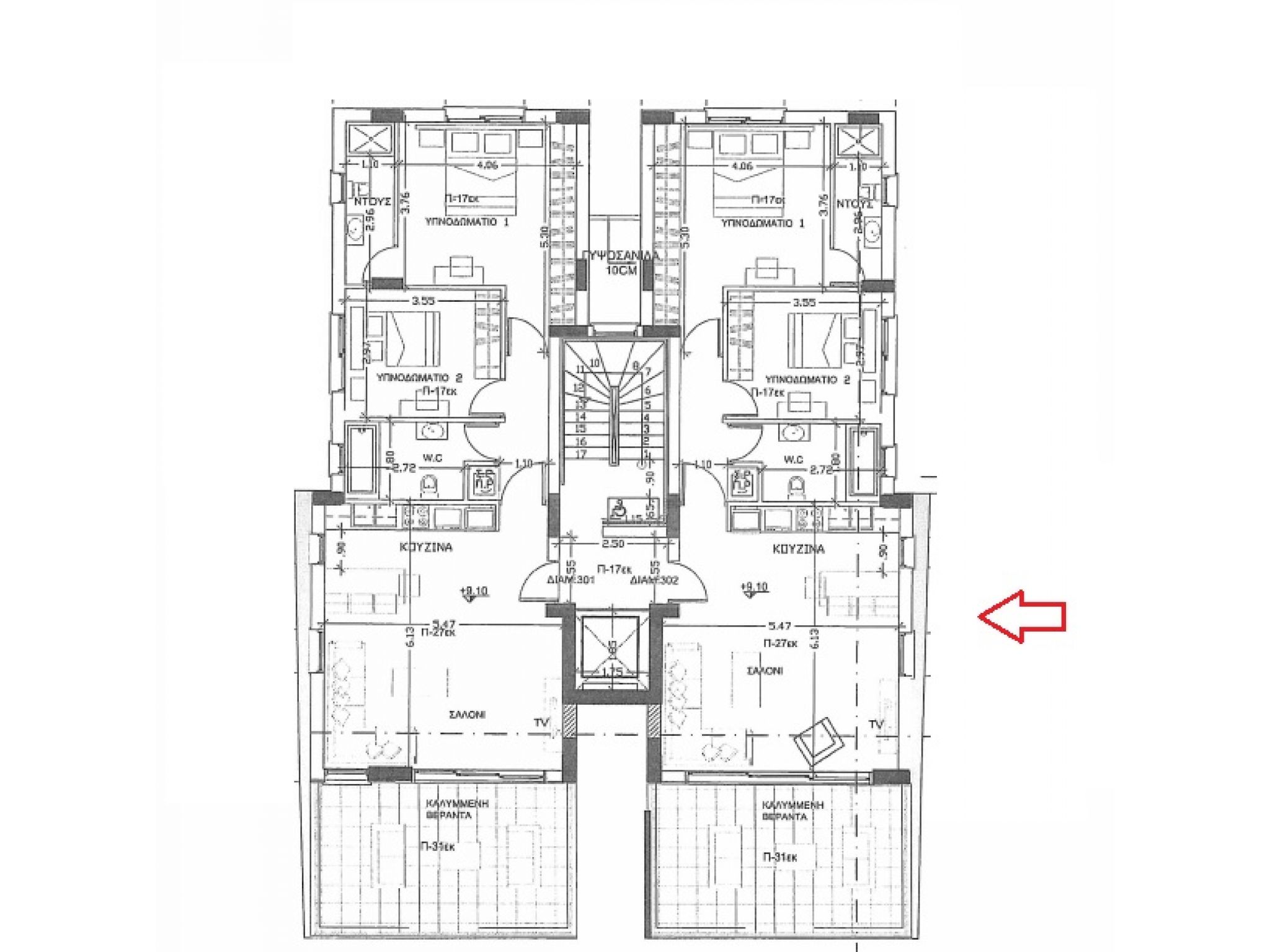
This brand new project is under construction and is located in Engomi area. The building has four floors and eight apartments of two bedrooms. This apartment is build on the third floor and consists of a living room with dining area and open plan kitchen, two bedrooms and two bathrooms.
TECHNICAL FEATURES:
- Electric heaters
- Solar water heater
- Provision for A/C units
- CCTV
- Electric shutters in bedrooms
- Storage
- Covered parking space
*Last available apartment in the building for sale,
Καινούριο έργο υπό κατασκευή στην Έγκωμη. Το κτίριο αποτελείται από τέσσερις ορόφους και οκτώ διαμερίσματα των δύο υπνοδωματίων. Αυτό το διαμέρισμα βρίσκεται στον τρίτο όροφο και αποτελείται από το σαλόνι με την τραπεζαρία και ενιαία κουζίνα, δύο υπνοδωμάτια και δύο μπάνια.
ΤΕΧΝΙΚΑ ΧΑΡΑΚΤΗΡΙΣΤΙΚΑ:
- Ηλεκτρικά θερμαντικά χρώματα
- Ηλιακός θερμοσίφωνας
- Πρόνοια κλιματισμού
- Έγχρωμη τηλεόραση
- Ηλεκτρικά shutters στα υπνοδωμάτια
- Αποθήκη
- Καλυμμένος χώρος στάθμευσης
*Το τελευταίο διαθέσιμο διαμέρισμα προς πώληση στο κτίριο.
To arrange an appointment to view this and any other property from our website, please call or email us directly.

