Three bedroom house plus office room for sale in Latsia
Sold / EUR 370.000 (VAT not included)
77775070
or +357 95598488
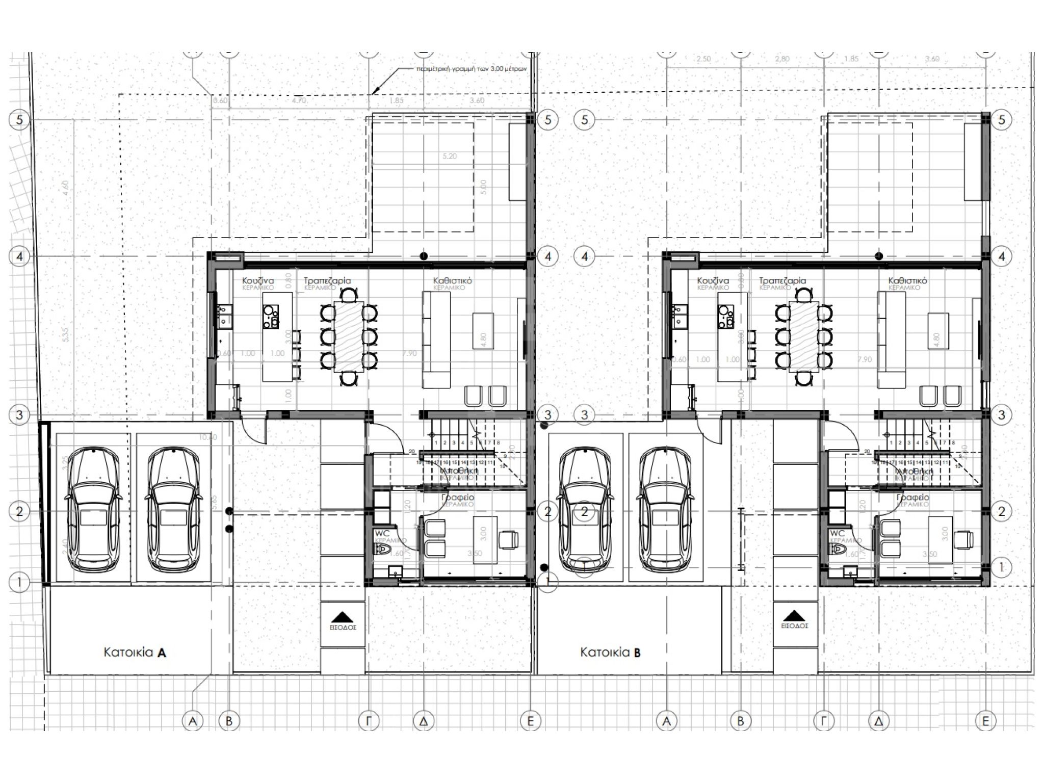
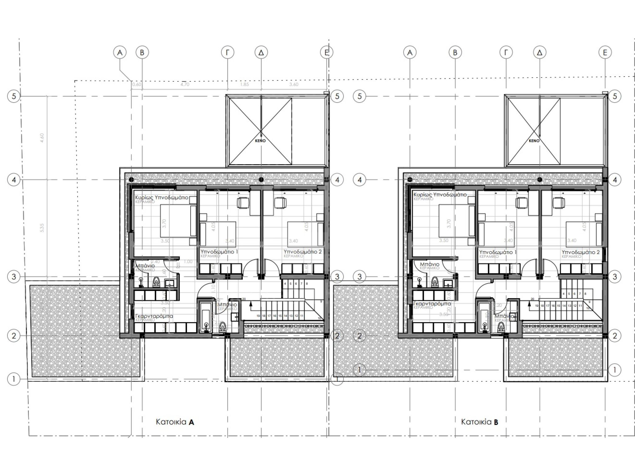
This property is located in Latsia (Carolina Park). The ground floor consists of a living room with dining area open plan kitchen, a guest wc and office room. The first floor consists of three bedrooms, two bathrooms (one en-suite in master bedroom) and a laundry room. The master bedroom has also a walk-in wardrobe.
PROPERTY FEATURES:
- Double covered parking space
- A/C
- Provision for alarm system
- Installation of 3 KW photovoltaic system
- Provision for central heating
Αυτό το ακίνητο βρίσκεται στα Λατσιά (Carolina Park). Το ισόγειο αποτελείται από σαλόνι με τραπεζαρία, ενιαίου τύπου κουζίνα, wc επισκεπτών και γραφείου. Ο πρώτος όροφος αποτελείται από τρία υπνοδωμάτια, δύο μπάνια (το ένα en-suite στην κύρια κρεβατοκάμαρα) και ένα πλυσταριό. Το κυρίως υπνοδωμάτιο έχει επίσης δωμάτιο-ντουλάπα.
ΧΑΡΑΚΤΗΡΙΣΤΙΚΑ ΑΚΙΝΗΤΟΥ:
- Διπλό στεγασμένο πάρκινγκ
- A/C
- Πρόβλεψη για σύστημα συναγερμού
- Εγκατάσταση φωτοβολταϊκού συστήματος ισχύος 3 KW
- Πρόβλεψη για κεντρική θέρμανση
To arrange an appointment to view this and any other property from our website, please call or email us directly.





