Four bedroom Modern Detached house in Tseri
For Sale / EUR 320.000 (VAT not included)
77775070
or +357 95598488
Το έργο αποτελείται από δύο πολυτελείς ανεξάρτητες κατοικίες σε αναπτυσσόμενη, ήσυχη και εύκολα προσβάσιμη περιοχή Λαπάτσας στο Τσέρι
Κατασκευασμένες με υλικά αρίστης ποιότητας για τη μέγιστη λειτουργική ζωή και την ελάχιστη συντήρηση τους διασφαλίζοντας την αξία τους σε βάθος χρόνου
Οι οικιστικές μονάδες διαθέτουν :
➖Πιστοποιητικό Ενεργειακής Απόδοσης κατηγορίας Α
.➖Πρόνοια εγκατάστασης Φωτοβολταικών.
.➖Ηλιακούς συλλέκτες.
.➖Πρόνοια Θέρμανσης και κλιματισμού.
.➖Θερμομόνωση, Υγρομόνωση, Ηχομόνωση.
. Διπλά τζάμια.
Μια Κατοικια μονο διαθεσιμη!
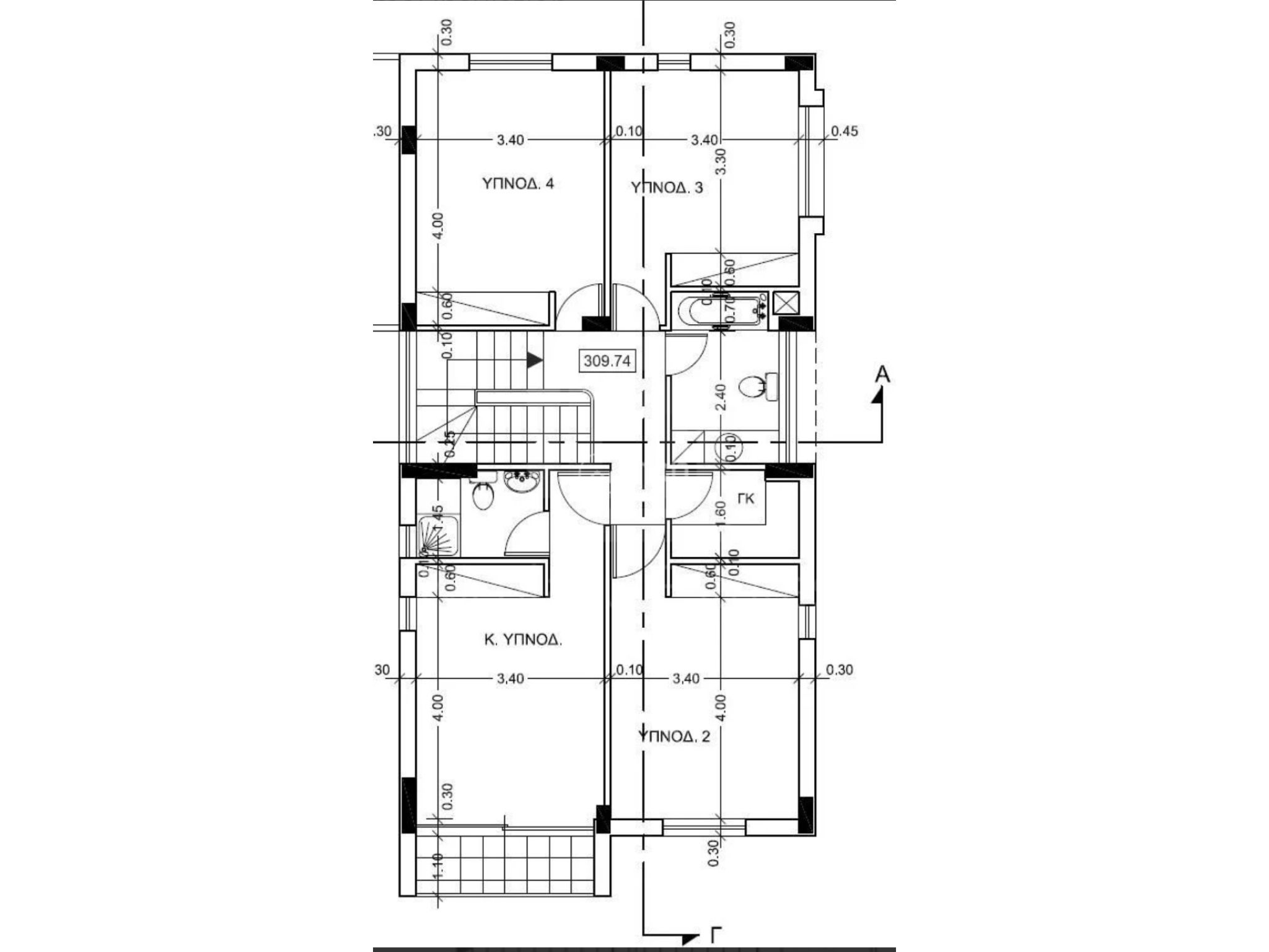
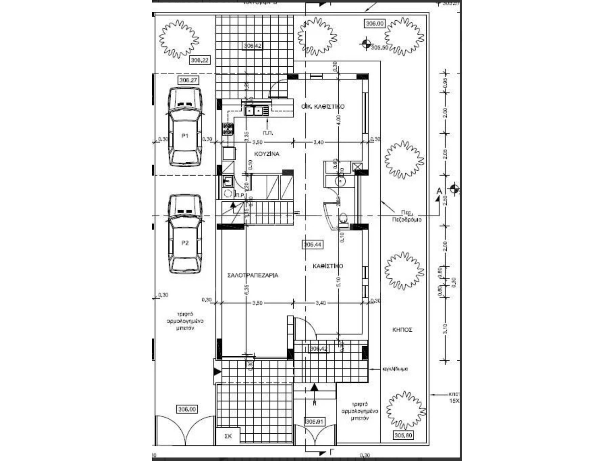
ΕΜΒΑΔΑ ΚΑΤΟΙΚΙΑΣ (4ΥΠΝΟΔΩΜΑΤΙΩΝ)
Α)▪️Εμβαδό Γης = 287 τ.μ.
Β) ▪️Συνολικό (ωφέλιμο) Εμβαδό οικίας = 201.74 τ.μ. Γ) Εμβαδό Ισογείου = 96.83 τ.μ.
Δ) ▪️Εμβαδό Ορόφου = 104.91 τ.μ.
Ε) ▪️Εμβαδό Γκαράζ = 15 τ.μ.
Ζ) ▪️Εμβαδό Καλυμ. Βεραντών = 12.25 τ.μ.
Η) ▪️Εμβαδό Ακαλ. Βεραντών = 26.21 τ.μ.
Καντε την κινηση σας τωρα!
To arrange an appointment to view this and any other property from our website, please call or email us directly.









