Brand new shop for sale on Makedonias Avenue
Archived / EUR 1.400.000
77775070
or +357 95598488
510m2
Property ID:
VL3208
Office Code:
6CHNI
Type:
Shop
33
1
337
Area:
Tsirio
District:
Limassol
Covered Internal Area:
510 m2
Energy Rating:
C
Share this property:
Property Actions:
Print
Request
Bookmark
Bookmarked
Recommend
Metric Conv
Download 11 property images
DESCRIPTION
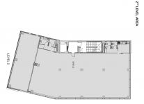
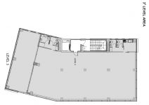
The building will be situated on the busiest streets of Limassol - Spyrou Kyprianou Avenue (ex. Makedonias Avenue) offering high exposure to the public. This commercial building consists of one spacious, double height ground floor area with a road facing mezzanine and 3 floors of open-plan office space which can be easily modified to satisfy particular corporate needs.
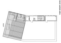
The top floor will have a large roof garden ? south orientation - viewing the sea and the city, for entertainment and recreational purposes of the staff or business associates. The building will also benefit from an underground basement and an over ground places with generous parking spaces.
Commercial building of 7 levels, 4 floors of offices, a mezzanine, an underground area and a roof garden:
? Total areas are 2,890 m2 and the plot is 1035 m2
? Energy efficiency building, Class B with provision to become Class A if photovoltaic system is installed.
? Providing all the new high-Tec office facilities
? Impressive reception and a lounge area
? Provision for an internal kitchen/cafeteria serving 50 persons
? Central conference room with easy access from the reception, lounge area and kitchen/cafeteria
? Open plan floors with limited columns offering flexibility in any internal office arrangement
? False ceiling and raised floors to accommodate all electromechanical services and provide flexibility in future arrangements
? Efficient utilization of the building space. Low percentage of space that isn?t business usable (elevator lobbies, hallways and restrooms)
? Ready infrastructure for an easy extension of each floor by 80m2 , by closing the covered veranda with glass
? Spacious and secure underground areas
? Large roof garden viewing the sea and the city, for entertainment and recreational purposes of the staff or business associates
VAT is not included in the price
The top floor will have a large roof garden ? south orientation - viewing the sea and the city, for entertainment and recreational purposes of the staff or business associates. The building will also benefit from an underground basement and an over ground places with generous parking spaces.
Commercial building of 7 levels, 4 floors of offices, a mezzanine, an underground area and a roof garden:
? Total areas are 2,890 m2 and the plot is 1035 m2
? Energy efficiency building, Class B with provision to become Class A if photovoltaic system is installed.
? Providing all the new high-Tec office facilities
? Impressive reception and a lounge area
? Provision for an internal kitchen/cafeteria serving 50 persons
? Central conference room with easy access from the reception, lounge area and kitchen/cafeteria
? Open plan floors with limited columns offering flexibility in any internal office arrangement
? False ceiling and raised floors to accommodate all electromechanical services and provide flexibility in future arrangements
? Efficient utilization of the building space. Low percentage of space that isn?t business usable (elevator lobbies, hallways and restrooms)
? Ready infrastructure for an easy extension of each floor by 80m2 , by closing the covered veranda with glass
? Spacious and secure underground areas
? Large roof garden viewing the sea and the city, for entertainment and recreational purposes of the staff or business associates
VAT is not included in the price
MAIN PROPERTY FEATURES
MAP










