Plot for sale with building permits in Tseri area near Constantinou & Elenis Church
For Sale / EUR 110.000 (VAT not included)
77775070
or +357 95598488
Property ID:
VL50357
Office Code:
50CHPI
Type:
Land / Plot
35
2
239
Area:
Tseri
District:
Nicosia
Plot Size:
530 m2
Building Density:
90.00 %
Land Type:
Residential
Energy Rating:
A
Share this property:
Property Actions:
Print
Request
Bookmark
Bookmarked
Recommend
Metric Conv
Mortgage
Download 5 property images
DESCRIPTION
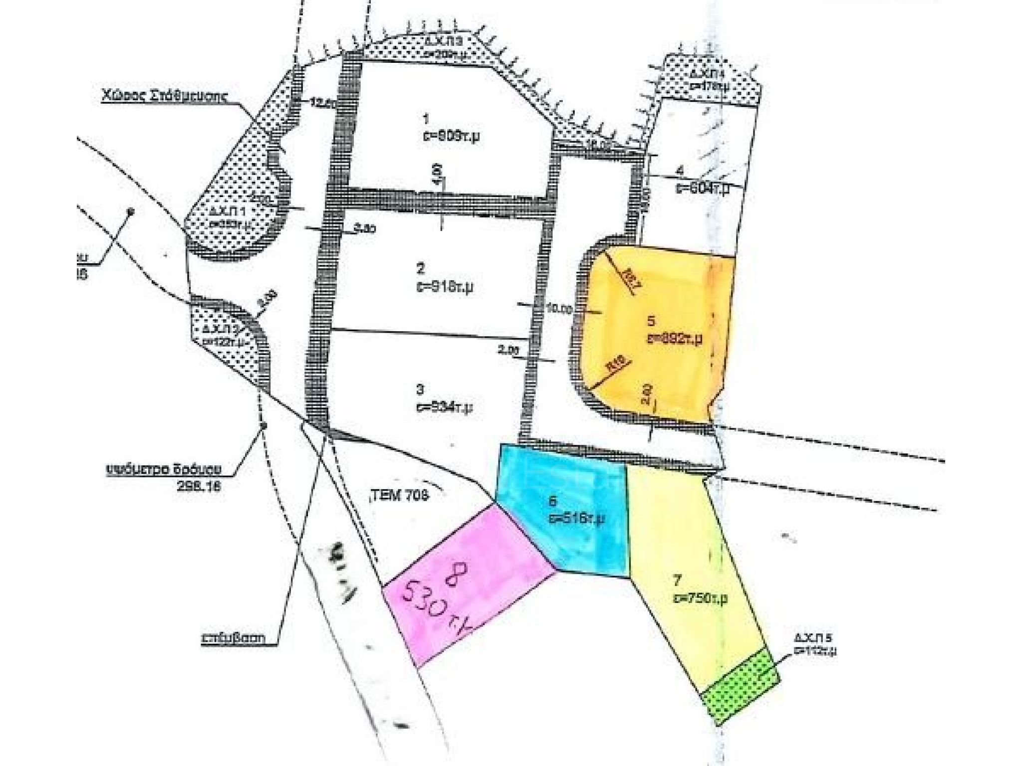
Οικιστικό οικόπεδο προς πώληση με άδειες διαίρεσης στην περιοχή Τσέρι της Λευκωσίας, κοντά στη μεγάλη εκκλησία Κωνσταντίνου και Ελένης.
Εμβαδόν οικοπέδου: 530τ.μ.
Συντελεστής δόμησης: 90%
Τίτλος ιδιοκτησίας
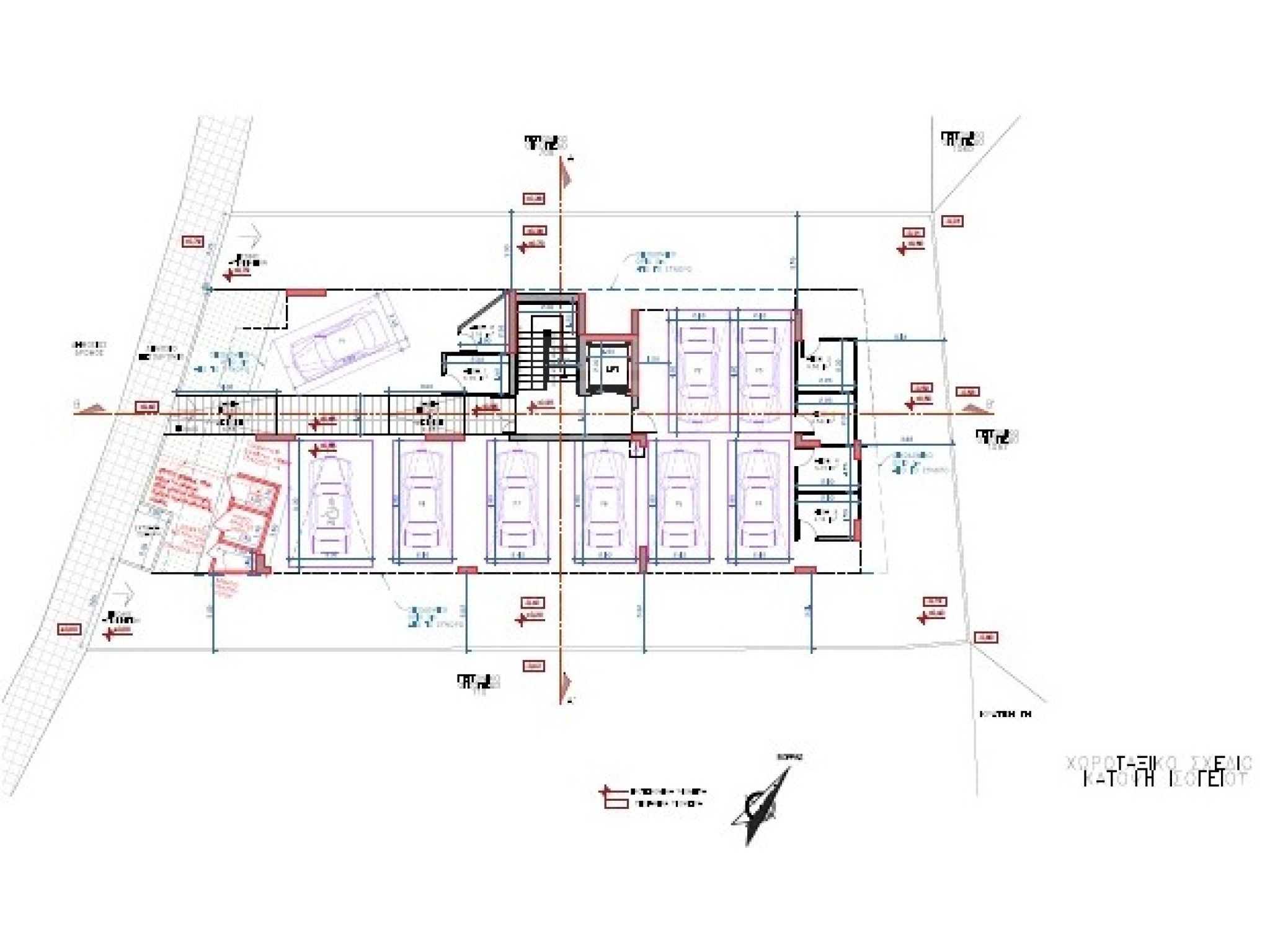
Άδεια οικοδομής για πολυκατοικία
Residential plot for sale with division permits in Tseri area of Nicosia, near Constantinou & Elenis big Church.
Plot size: 530m2
Building factor: 90%
Title Deed
Planning permit for an apartment building
MAIN PROPERTY FEATURES
This land / plot in Tseri, Nicosia is being offered for sale at EUR 110.000 (VAT not included).
To arrange an appointment to view this and any other property from our website, please call or email us directly.
Other property suggestions
VL50743
Deftera, Nicosia
524 m2 Land / Plot For Sale
Reduced from EUR 170.000
EUR 105.000
For internal use only: 50CHPI




