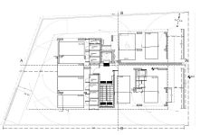
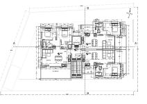
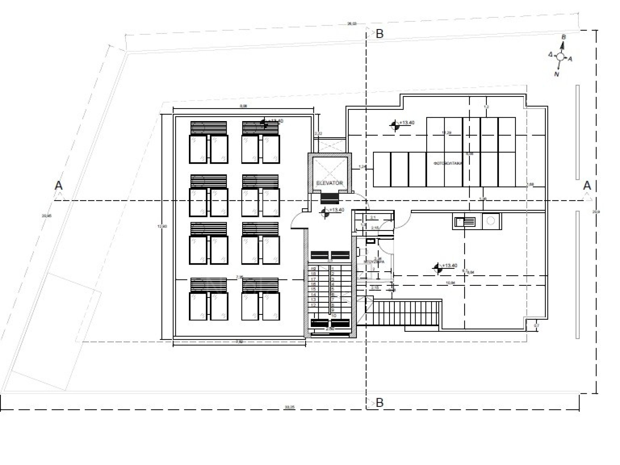
New one bedroom apartment in Agios Spyridonas area, Limassol
Sold / EUR 185.000 (VAT not included)
77775070
or +357 95598488
ΧΑΡΑΚΤΗΡΙΣΤΙΚΑ
Πρόβλεψη για ηλεκτρικές συσκευές στην κουζίνα και στο πλυσταριό: ηλεκτρική εστία, φούρνος, πλυντήριο πιάτων, πλυντήριο ρούχων, στεγνωτήριο ρούχων και ψυγείο
Στις κουζίνες, πάγκοι και ντουλάπια ιταλικού τύπου (μελαμίνη) και ξύλινη επιφάνεια στο χρώμα της επιλογής του πελάτη
Πρόβλεψη για συστήματα κλιματισμού inverter για ζεστό/κρύο
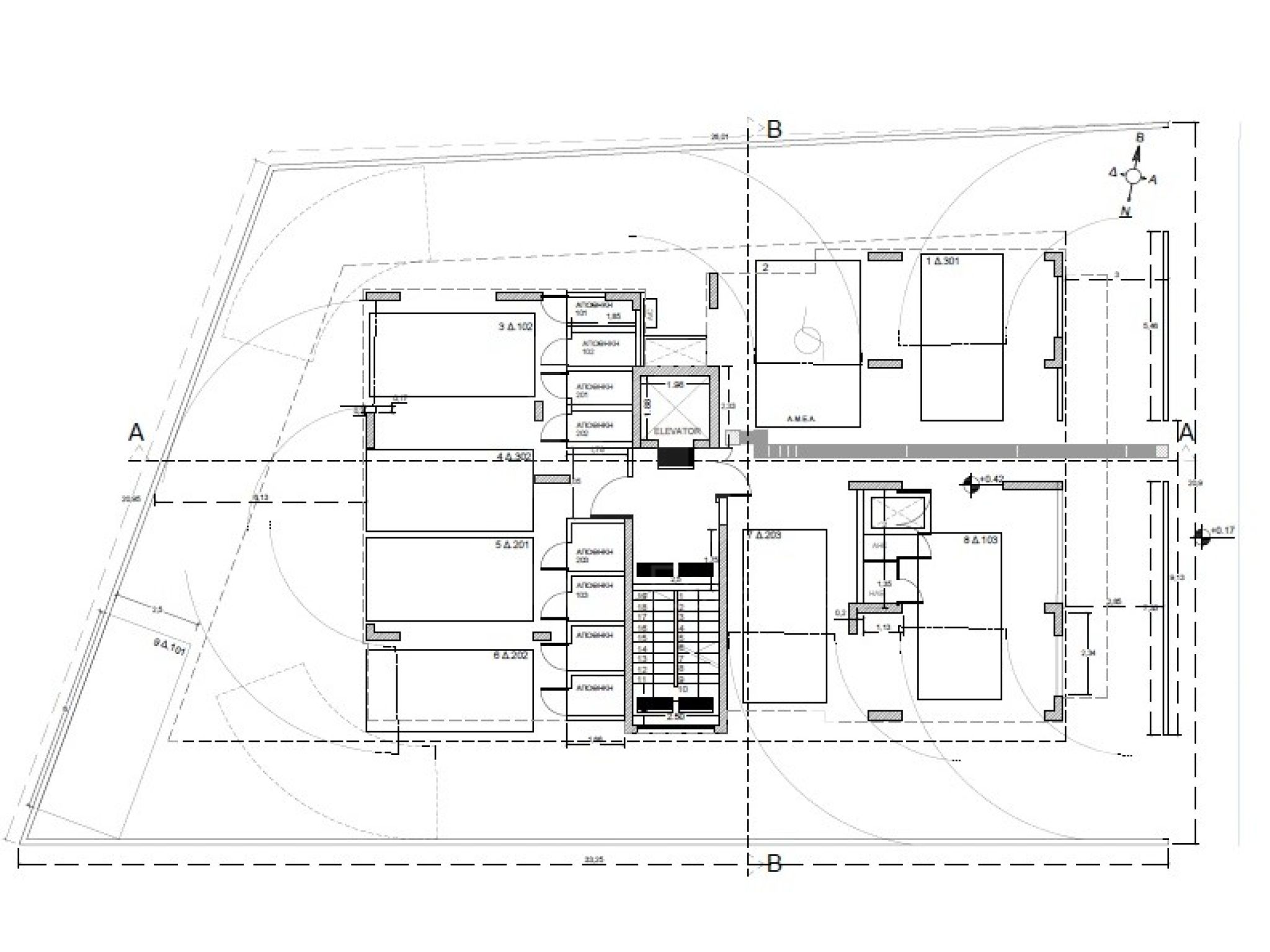
Θέση στάθμευσης και αποθήκη για κάθε διαμέρισμα
FEATURES
Provisions for electrical appliances in the kitchen and laundry room: electric hob, oven, dishwasher, washing machine, clothes dryer and refrigerator
In the kitchens, Italian style counters and cabinets (melamine) and wooden top in the color of the customer's choice
Provisions for hot/cold inverter air conditioning systems
A parking space and a storage room allocated for each apartment







