Brand new studio apartment under construction in Kato Polemidia
For Sale / EUR 145.000 (VAT not included)
77775070
or +357 95598488
In a quiet area of Kato Polemidia and close to everyday amenities we are pleased to offer for sale these luxurious apartments (currently under construction). The project consists of 2 buildings A' & B' of 4 floors each and 5 apartments on each floor. There are currently two studio apartments available: on the 4th 7 5th floors.
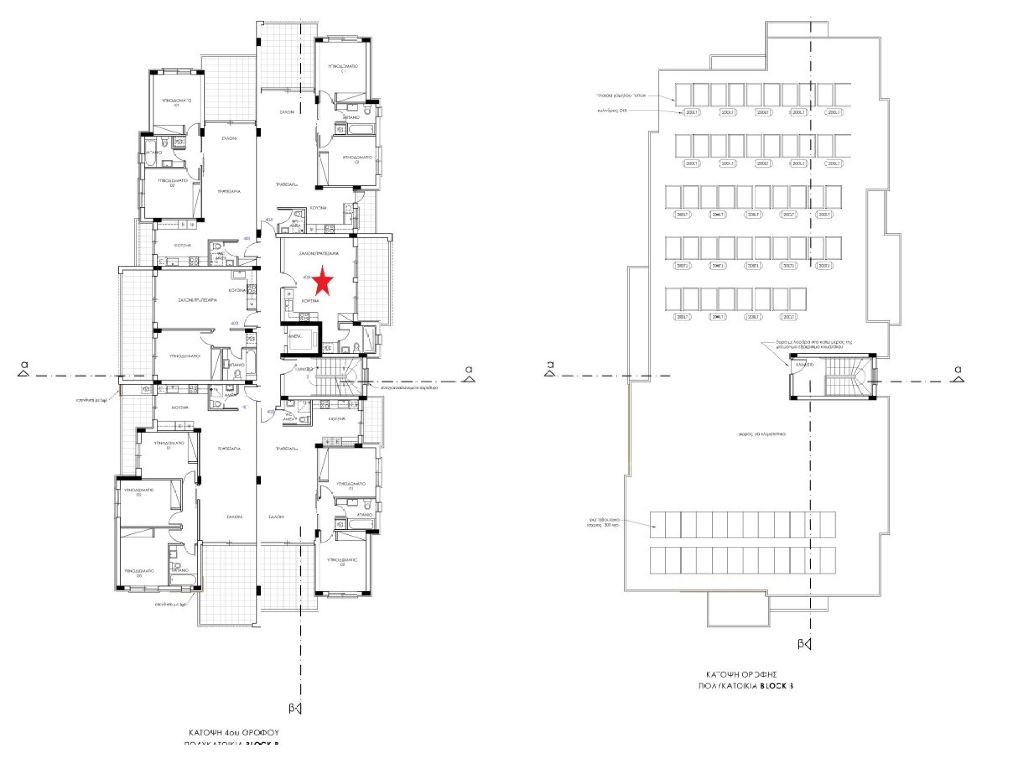
Studio. apartment no. 404 is on the 4th floor of Block B' and it comes with 36m2 of internal covered areas, a spacious 12m2 covered veranda, 1 covered parking space and a private storage room. Price is 145000 euro plus VAT.
Studio. apartment no. 504 is on the 5th floor of Block B' and it comes with 36m2 of internal covered areas, a spacious 12m2 covered veranda, 1 covered parking space and a private storage room. Price is 150000 euro plus VAT.
Projected completion: September 2027
Please contact us for more details and viewing arrangements.
To arrange an appointment to view this and any other property from our website, please call or email us directly.









